Salsa St, Ripley
3 Bedroom SDA with OOA
Built to a Robust or Improved Liveability Level
Home Carer's Alliance is dedicated to helping you access suitable disability accommodation. This home offers spacious, accessible areas and is designed for smart home living, allowing you to maintain a high level of independence.
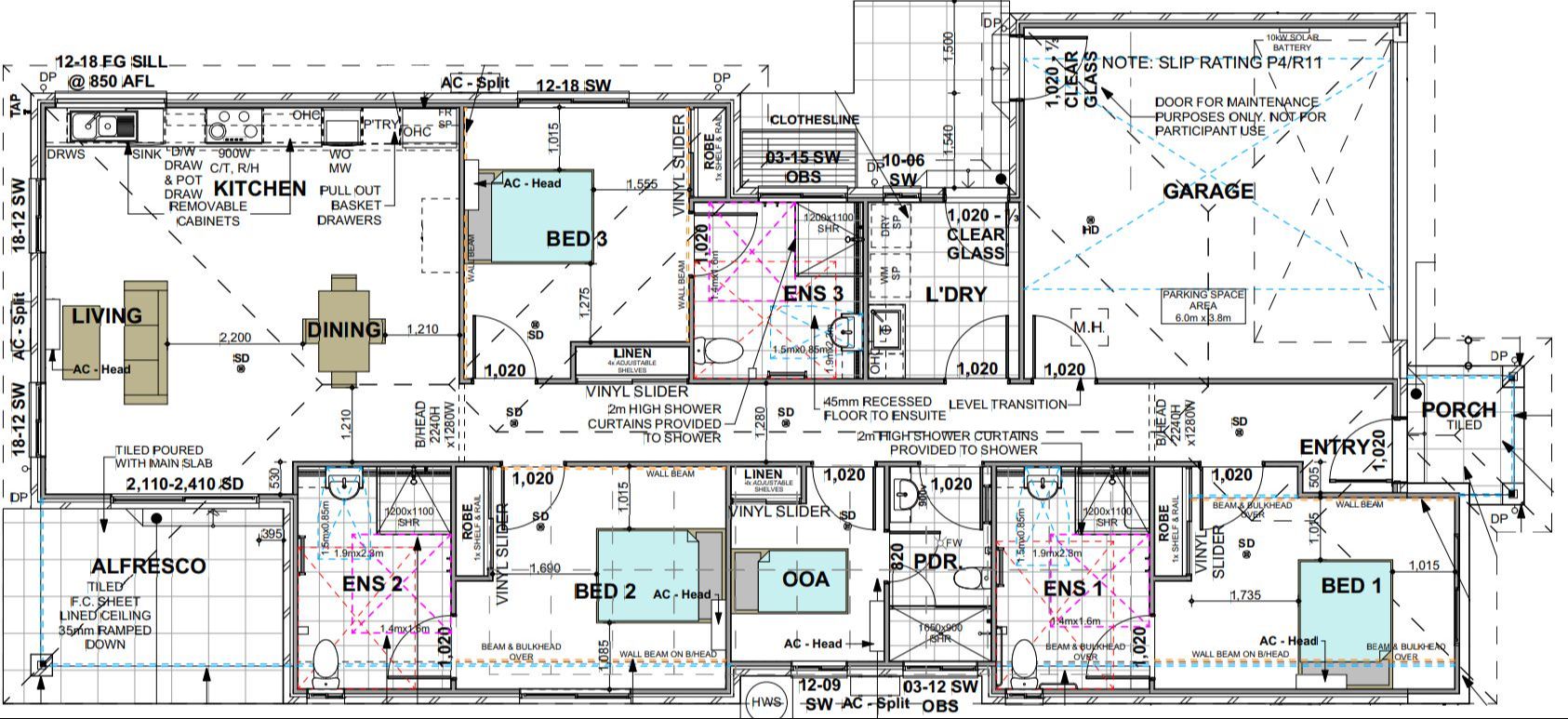
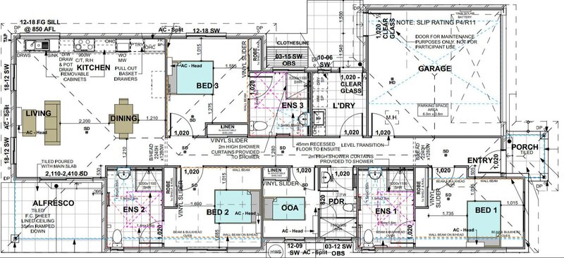
This spacious 3 HPS bedroom + OOA room home is located in Ripley, Ipswich, and is designed for up to three HPS participants, with an OOA bedroom for onsite overnight support. It can be fully furnished, or you can bring your own furnishings.
Provisioned for smart living, this SDA home combines functionality and comfort, allowing you to enjoy independence with support close at hand.
Availability
3 Rooms Available
Location
Ipswich
Home features you may enjoy:

- Three large bedrooms, each with its own ensuite, SDA accessibility features, split system air-conditioning and capacity for ceiling hoists if required
- A modern kitchen with a height-adjustable benchtop, dish drawer dishwasher, Caesarstone benchtops and strip lighting to overhead cupboards, filled with bright natural light
- Spacious open-plan living and dining areas with TVs in each room, plus a separate laundry with a washing machine and dryer provided
- Wheelchair access throughout, fully air-conditioned and secure with a lock-up garage for peace of mind

Live independently with all the support needed to thrive.
This spacious home features a spacious bedroom with an accessible ensuite, air conditioning, ceiling fan, and built-in robes.
The main living area is open plan, with direct access to a covered patio and private backyard.
We are open to modifications, meeting the needs of individual tenants.
For more information, please contact us.
*Some imagery may be for illustrative purposes only and represents finishes similar to this property.















