Ryan Ct, Torquay
3 SDA Room Home with OOA
Built to High Physical Support, Fully Accessible Level
With vacancies available for three participants, this property is ideally located in the sought-after Torquay area within the Fraser Coast region. It offers access to local bus services, nearby shopping precincts, cafes, medical services, and recreational facilities, supporting easy day-to-day living.
Just minutes from the Hervey Bay foreshore and Torquay Beach, residents can enjoy a relaxed coastal lifestyle, with parks, walking paths, and community spaces close by. The home is also within a short drive of local schools and essential services, offering a balance of comfort, convenience, and seaside living.
Availability
3 Rooms Available
Location
Fraser Coast Region
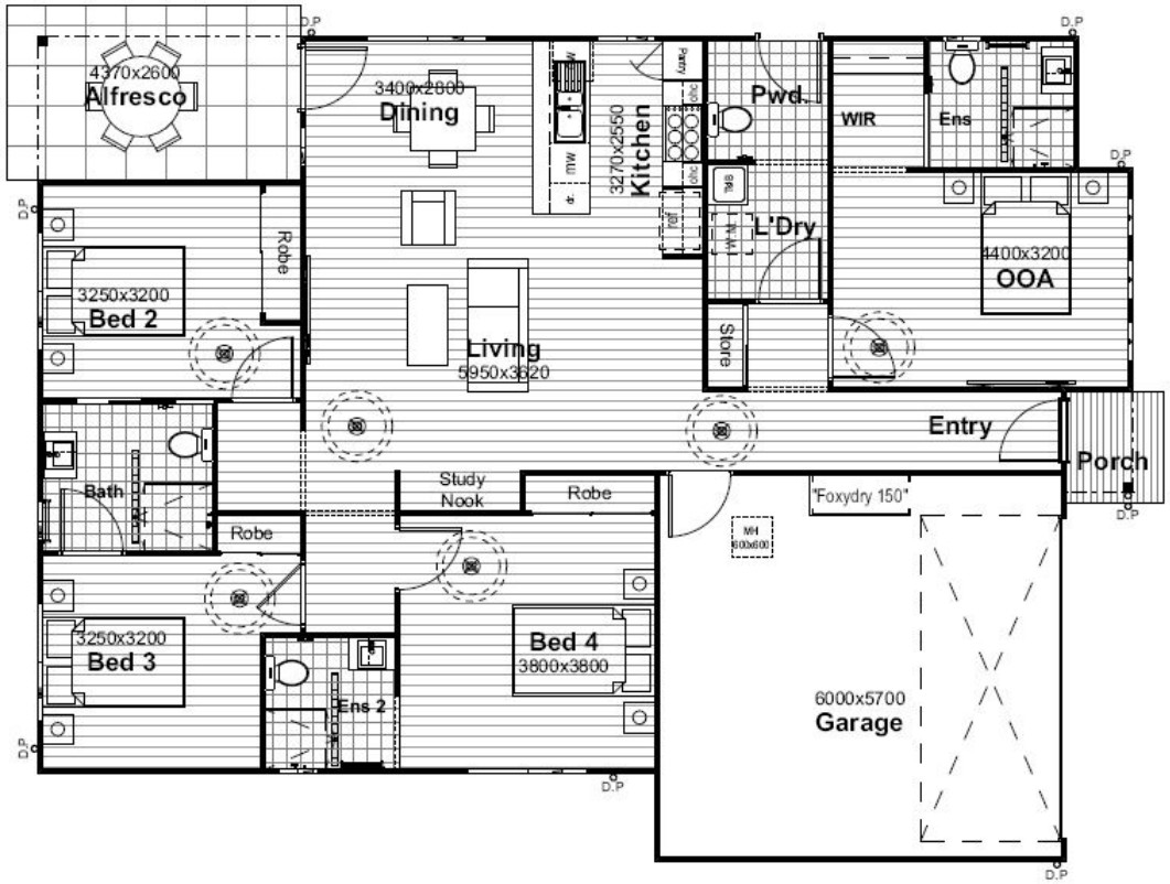
Home features you may enjoy:

Spacious lounge and dining area for residents to socialise
Large, accessible kitchen designed for meal preparation and cooking participation
Outdoor alfresco dining area for entertaining
Wide corridors, specially designed bathrooms, and ample personal storage for functionality

At Home Carer’s Alliance, our quality disability care starts with home.
With a unique and vast network of reputable property developers across Queensland, HCA are dedicated to assisting you in obtaining Specialised Disability Accommodation built to the highest standards, all 3rd party approved.
The homes we provide include spacious, wheelchair accessible areas, and provisions have been made for smart home living so you can live with a high level of independence. Our homes can be customised to meet particpant needs and feature cutting-edge smart-home technology like the ability to control lights, blinds, access doors, air conditioning, and intercom systems from a mobile device.
For more information, please contact us.
To learn more about this SDA property
or ask about our other accommodation options, chat with our friendly team today.









